Residenza di nuova realizzazione in Classe A - Trilocale Piano Terra

270.500 €
96,5 m²
Superficie
3
Locali
2
Camere
2
Bagni
in vendita
appartamento
Bovisio Masciago
Descrizione
Il piano di lottizzazione prevede la riqualificazione totale della zona con creazione di una nuova viabilità pedonale e veicolare, oltre parcheggi e aree verdi attrezzate. La Residenza, costituita da N. 3 corpi di fabbrica, è ubicata in zona centrale del paese, nelle immediate vicinanze delle ferrovie nord e di tutti i servizi di primaria necessità, comprese le scuole e asili.

La Palazzina, munita di ascensore in assenza di barriere architettoniche, verrà realizzata con le ultimissime tecniche costruttive nel pieno rispetto delle recenti normative antisismiche e nel pieno rispetto del contenimento energetico. Facciate in mattoni faccia a vista S. Anselmo color grigio tortora abbinate a parapetti in cemento martellinato garantendo un’estetica elegante e contemporanea.

Impianto di riscaldamento a pavimento a gestione autonoma, centrale termica in pompa di calore elettrica con integrazione di impianto fotovoltaico. Ogni appartamento sarà dotato di sistema di ventilazione meccanica controllata WMC, predisposizione dell'aria condizionata in tutti i locali, serramenti in PVC con tripla guarnizione di battuta ad altissime prestazioni termo acustiche, tapparelle motorizzate in alluminio coibentato con monoblocco anch’esso a tenuta termico acustica , portoncino d'ingresso blindato, impianto elettrico BTicino serie "Living Now”, videocitofono e predisposizione aria condizionata in tutti gli ambienti.

L’impianto fotovoltaico, a servizio delle parti comuni, permetterà una netta riduzione dei costi condominiali.

Le finiture interne quali pavimenti, rivestimenti, porte interne, sanitari e rubinetterie di design, verranno posati su indicazione dell'acquirente in funzione della dotazione progettuale così come da capitolato delle opere.

Proponiamo appartamenti di 2-3-4 locali che si sviluppano in piano terra con giardini privati, piani primo-secondo-terzo con splendidi terrazzi loggiati per un totale di 3 uffici e 29 abitazioni oltre cantine e box doppi.
Consegna prevista dicembre 2027.

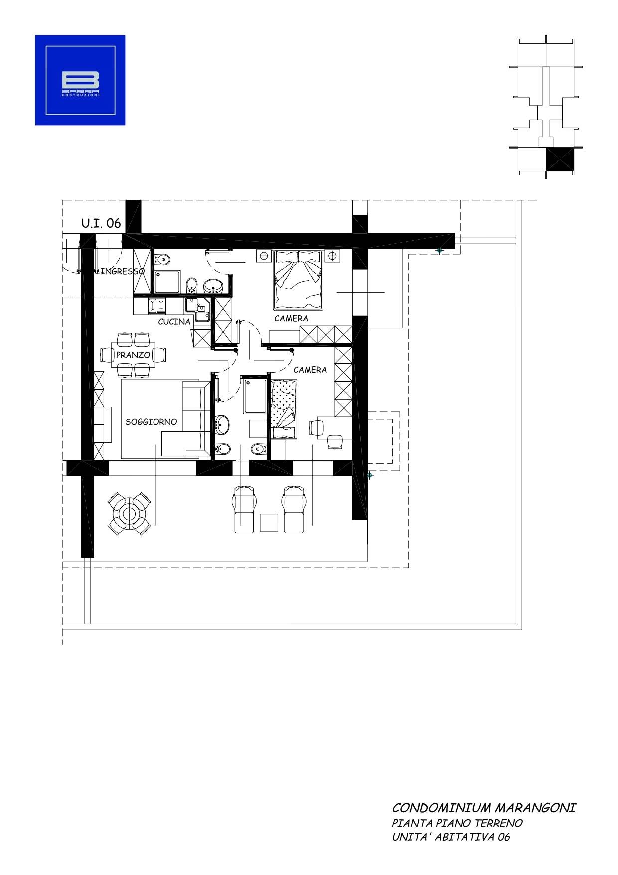
APPARTAMENTO "A6" PIANO TERRA
Appartamento di 3 locali per complessivi 96,50 mq commerciali circa così composto: ingresso sulla zona giorno con cucina a vista ed accesso diretto al giardino di proprietà di circa 85 mq; disimpegno notte, doppi servizi e n. 2 camere da letto di cui la matrimoniale munita di bagno padronale. Doppia esposizione. Completa la soluzione una cantina al piano interrato.

Prezzo richiesto € 270.500,00 abitazione e cantina

Box doppio in lunghezza a parte

Contattaci per scoprire le altre soluzioni disponibili al piano terra.
Caratteristiche principali
Codice:
V000085
Città:
Bovisio Masciago
Categoria:
Appartamento
Locali:
3
Camere:
2
Bagni:
2
Mq:
96,5
Mq Giardino:
85
Piano:
Terra
Anno:
2025
Classe energetica:
A
Stato Immobile:
Prossima Realizzazione
Grado:
Signorile
Posizione:
Centro
Lati Liberi:
2
Giardino:
Privato
Tipo Cucina:
A Vista
Riscaldamento:
Centralizzato
Tipo Riscaldam.:
Pompa di Calore
Tipo Impianto:
Pavimento
Fonte Energetica:
Fotovoltaico
Acqua Calda:
Centralizzata a Pannelli
Raffrescamento:
Predisposizione
Infissi:
PVC Triplo Vetro
Serramenti:
Nuovo
Accessori
Antifurto
Aria Condizionata
Ascensore
Cancello Elettrico
ImpiantoFotovoltaico
Impianto Satellitare
Passaggio Automobilistico
Passaggio Pedonale
Tapparelle Elettriche
Tripli Vetri
Video Citofono
Mappa
Via Marangoni - Bovisio Masciago (MB)
Cookie preference